小型系統主要采用AUTOTROL、FLECK公司的小型多路閥:255、168、255ES、268,2510、5000、5600、6700、8500。采用時間或流量控制器,構成單罐或雙罐系統,配用250~400mm的樹脂罐,進出水口1/2~1",單罐產水量0.5~4t/h,系統產水量0.5~6t/h。此類軟水系統一般采用塑料鹽箱、軟鹽水管,可選配有標準底座。
|
一、 |
ZK系列小型軟化水系統規格表 |
|
型號 |
處理量 |
罐徑 |
樹脂 |
鹽耗 |
外形尺寸(m) |
運行方式 |
|
ZK-03T |
0.2-0.5 |
Ф200 |
25 |
5 |
0.6×0.5×1.9 |
單罐時間控制含鹽閥及出水口電磁閥 |
|
ZK-1T |
0.5-1.4 |
Ф250 |
50 |
7 |
0.8×0.5×1.9 |
|
|
ZK-2T |
1.6-2.2 |
Ф300 |
75 |
10 |
0.9×0.5×1.9 |
|
|
ZK-3T |
2.5-3.0 |
Ф350 |
100 |
15 |
1.0×0.5×1.9 |
|
|
ZK-4T |
3.2-4.5 |
Ф400 |
125 |
19 |
1.2×0.5×1.9 |
|
|
ZK-5T |
4.0-5.5 |
Ф500 |
150 |
25 |
1.2×0.5×1.9 |
|
|
ZK-03Q |
0.2-0.5 |
Ф200 |
25 |
5 |
0.6×0.5×1.9 |
單罐流量控制,含鹽閥及出水口電磁閥剩余水量、瞬時流量、再生剩余時間顯示 |
|
ZK-1Q |
0.5-1.4 |
Ф250 |
50 |
7 |
0.8×0.5×1.9 |
|
|
ZK-2Q |
1.6-2.2 |
Ф300 |
75 |
10 |
0.9×0.5×1.9 |
|
|
ZK-3Q |
2.5-3.0 |
Ф350 |
100 |
15 |
1.0×0.5×1.9 |
|
|
ZK-4Q |
3.2-4.5 |
Ф400 |
125 |
19 |
1.2×0.5×1.9 |
|
|
ZK-5Q |
4.0-5.5 |
Ф500 |
150 |
25 |
1.2×0.5×1.9 |
|
|
ZK-1D2 |
0.5-1.4 |
Ф250 |
100 |
14 |
1.1×0.5×1.9 |
雙頭雙罐,雙罐一用一備。自動切換,不需用電磁閥。剩余水量、瞬時流量、再生剩余時間顯示 |
|
ZK-2D2 |
1.6-2.2 |
Ф300 |
150 |
20 |
1.2×0.5×1.9 |
|
|
ZK-3D2 |
2.5-3.0 |
Ф350 |
200 |
30 |
1.3×0.5×1.9 |
|
|
ZK-4D2 |
3.2-4.5 |
Ф400 |
250 |
40 |
1.4×0.5×1.9 |
|
|
ZK-5D2 |
4.0-5.5 |
Ф500 |
300 |
50 |
1.4×0.5×1.9 |
|
|
ZK-3E2 |
4.0-6.0 |
Ф350 |
100 |
30 |
1.3×0.5×1.9 |
雙罐同時運行,全數字信息顯示 |
|
ZK-4E2 |
6.0-9.0 |
Ф400 |
250 |
40 |
1.4×0.5×1.9 |
|
|
ZK-5E2 |
8.0-11 |
Ф500 |
300 |
50 |
1.4×0.5×1.9 |
|
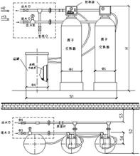
二、 |
ZK系列小流量軟化水設備安裝圖 |


|
三、 |
ZK系列小流量軟化水設備安裝尺寸表(mm) |
|
型 號 |
Φ1 |
Φ2 |
Φ3 |
Φ4 |
H1 |
H2 |
H3 |
S1 |
S2 |
S3 |
S4 |
||
|
ZK-1T |
ZK-1Q |
ZK-1D2 |
250 |
460 |
Dg25 |
Dg25 |
1800 |
1515 |
1635 |
800 |
850 |
300 |
460 |
|
ZK-2T |
ZK-2Q |
ZK-2D2 |
300 |
460 |
Dg25 |
Dg25 |
1800 |
1515 |
1635 |
800 |
850 |
300 |
485 |
|
ZK-3T |
ZK-3Q |
ZK-3D2/E2 |
350 |
600 |
Dg25 |
Dg25 |
2000 |
1750 |
1870 |
1020 |
850 |
300 |
510 |
|
ZK-4T |
ZK-4Q |
ZK-4D2/E2 |
400 |
600 |
Dg25 |
Dg25 |
2000 |
1750 |
1870 |
1500 |
850 |
300 |
535 |
|
ZK-5T |
ZK-5Q |
ZK-5D2/E2 |
500 |
650 |
Dg25 |
Dg25 |
2000 |
1750 |
1870 |
1500 |
850 |
300 |
535 |
注:1.上圖為雙罐系統,單罐系統沒有右側交換罐,雙罐系統沒有電磁閥;
2.配用標準底座時,設備進出口均已安裝好,相對位置沒有明顯改變;
3.建議進水口加裝Y型過濾器或其他過濾器(由用戶自購);
4.ZK-3E2、ZK-4E2、ZK-5E2系統的進出水管徑均為DN40,當采用FLECK的集成閥及控制器時,雙罐一用一備式系統的組成及外觀與上述情況略有差異,其基本組成如下圖所示,其主要特點是:頂裝,FLECK的中型及小型系統均采用頂裝安裝方式。





